KOMBISYSTEM / QUANTIX
EEN MODERNE OPLOSSING VOOR RAMEN EN DEUREN
Kombisystem is een innovatief, veelzijdig systeem ontworpen voor ramen, deuren en hefschuifdeuren. Dankzij geavanceerde technologie biedt het twee of drie afdichtingsniveaus, waardoor de hoogste gebruikskwaliteit wordt gegarandeerd.
Specificatie
| Uw | 0,73 W/(m²K). |
|---|---|
| Aantal kamers in het frame | 6 |
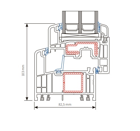
| Installatie diepte | 83 mm |
| Aantal afdichtingsniveaus | 3 |
Karakteristieke kenmerken
- Zeer goede thermische en akoestische isolatie dankzij de 6-kamerstructuur en een diepte van 82,5 mm in kader en vleugel.
- De juiste balans tussen statische eigenschappen en thermische isolatie dankzij optimale staalversterkingen.
- Aangepast om een driedubbele beglazing te gebruiken met een dikte van 52 mm (of 54 mm voor de STV-versie).
- Smalle kozijnen en vleugels maken de constructie van grote beglazingen mogelijk, en de sponninghelling van 15° benadrukt de tijdloze esthetiek van de ramen.
- Een extra derde afdichting verbetert de thermische isolatie, beschermt de armaturen tegen binnendringend vocht van buitenaf en vormt een effectieve akoestische barrière.

Kombisystem: innovatie en veelzijdigheid
Kombisystem to komfortowy, nowoczesny i wszechstronny system, który zaprojektowano z myślą o oknach, drzwiach oraz drzwiach podnoszono-przesuwnych. Dzięki zastosowaniu zaawansowanej technologii oferuje dwa lub trzy poziomy uszczelnienia, co zapewnia najwyższą jakość użytkowania i pełen komfort na długie lata.
Jednym z największych atutów Kombisystem jest jego doskonała izolacja termiczna, która została osiągnięta dzięki wieloletnim badaniom i precyzyjnym rozwiązaniom technicznym. Współczynnik przenikania ciepła Uf na poziomie 0,92 W/m²K spełnia wymagania budownictwa pasywnego, nawet przy standardowych wzmocnieniach stalowych. Dzięki temu system ten skutecznie zmniejsza straty ciepła, obniżając koszty ogrzewania i zwiększając energooszczędność.
Prezentowany system przystosowano do montażu pakietów 3-szybowych o grubości 52 mm, a w wersji z STV® do 54 mm. Takie rozwiązanie umożliwia budowę dużych przeszkleń przy jednoczesnym zachowaniu wąskich ram i skrzydeł. Dodatkowo nachylenie przylgi pod kątem 15° podkreśla elegancki i ponadczasowy wygląd okien, doskonale wpisując się w estetykę nowoczesnych wnętrz.
Derde afdichting – Betere isolatie en bescherming
Een extra derde afdichting verhoogt de thermische isolatie aanzienlijk en beschermt de armaturen tegen vocht. Bovendien creëert het een effectieve akoestische barrière die het externe geluid vermindert, waardoor gebruikers rust en comfort krijgen. Kombisystem combineert esthetiek, moderne technische oplossingen en functionaliteit, waardoor het een uitstekende keuze is voor energiezuinige huizen.
Dzięki wysokiej stabilności statycznej, Kombisystem nadaje się do konstruowania dużych przeszkleń, także w wersji kolorowej. Technologia statycznego klejenia na sucho zwiększa stabilność i bezpieczeństwo konstrukcji, co sprawia, że użytkowanie tych okien jest jeszcze bardziej komfortowe.

QUANTIX – WIĘCEJ ŚWIATŁA NIŻ KIEDYKOLWIEK
Quantix to smuklejsza wersja systemu Kombisystem, zaprojektowana z myślą o bardziej eleganckim profilu przy zachowaniu pełnej kompatybilności i wysokich parametrów użytkowych. Jest to nowoczesne rozwiązanie, które łączy tradycyjną ramę z obniżonym skrzydłem, tworząc wyjątkowo smukłą i elegancką konstrukcję okna. Taka budowa pozwala na wpuszczenie nawet o 25% więcej naturalnego światła w porównaniu do standardowych systemów.

Profil Quantix wyróżnia się niską kombinacją ramy i skrzydła o wysokości zaledwie 103 mm oraz innowacyjnym układem słupek–skrzydło o szerokości jedynie 106 mm. Dla porównania, tradycyjne konstrukcje z ruchomym słupkiem mogą mieć nawet 170 mm szerokości, co znacząco ogranicza ilość światła i zaburza estetykę okna. Dzięki Quantix możliwe jest osiągnięcie nowoczesnego, minimalistycznego wyglądu bez kompromisów w zakresie funkcjonalności, wygody obsługi czy bezpieczeństwa. Smukłe profile to więcej światła dziennego, lepszy design i większy komfort codziennego użytkowania.
ZIE OOK:
Combisysteem MD & Acrylcolor®-technologie
Kleuren van ramen en deuren
Product KOMBISYSTEM / QUANTIX komt in de volgende versies
Zie ook
Nieuwsbrief
Schrijf u in op onze nieuwsbrief en blijf op de hoogte van informatie over ons bedrijf.
